-
延陵 编辑
延陵,位于陕西省咸阳市渭城区,是西汉第十二位皇帝成帝刘骜和孝成皇后许氏的合葬陵,也是西汉帝陵之一。
延陵陵区由陵园与陪葬墓两大部分组成,以陵园为中心,陪葬墓主要分布在陵区南部、东南部。其范围东西约4.5千米、南北约4千米,总面积约18平方千米。 通过考古勘探,全面了解西汉晚期延陵的范围、布局与结构,为西汉帝陵制度的深入研究奠定基础。
1956年8月6日,延陵被陕西省人民政府公布为陕西省第一批重点文物保护单位。 2001年6月25日,包含延陵在内的西汉帝陵被中华人民共和国国务院公布为第五批全国重点文物保护单位。 2019年4月24日,包含延陵在内的西汉帝陵被国家文物局列入《中国世界文化遗产预备名单》。
中文名:延陵
地理位置:陕西省咸阳市渭城区周陵街道严家沟村西北
所处时代:西汉
占地面积:1800 公顷
保护级别:第五批全国重点文物保护单位
开放时间:全天
编号:5-0183-2-039
批准单位:中华人民共和国国务院
2011年3月—2012年7月,陕西省考古研究院和咸阳市文物考古研究所对延陵进行了考古勘探。
延陵
陵园布局
综述
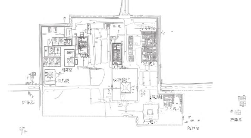
延陵陵园是指外壕沟、外墙垣包围形成的一个区域空间,包括帝陵陵园、后陵陵园、建筑遗址、外藏坑、衬葬墓。陵园以帝陵陵园为中心、以四条神道为界线划分大致的功能区域。陵园整体可分为六个区域——帝陵陵园、皇后陵园、东南部建筑遗址区、东北部建筑遗址区、西北部衬葬墓区、西南区域。
墙垣
延陵陵园由于避让其西北处平陵的陪葬墓与东边的战国秦王陵,其平面形制为东西向不规则长方形,西北角内收,东南角外凸。由于形状不规则,四侧墙垣均不在一条水平线上,都可分为两或三段。主体边长为北墙垣1820米、西墙垣1534米、南墙垣1820米、东墙垣1531米。
陵园共设五座门,主体部分四面墙垣正对帝陵陵园门阙位置各设一门,东南外凸部分西墙设一门。以西门址为例,位于西墙的偏南部,门址平面南北通长82.3、宽4.2~4.7米。门道位于门址中部,宽约3.5米。门址夯土距地表深0.6~1、残高0.9~1.2米。门址周边1~1.5米范围及门道内堆积有大量汉代瓦片。
壕沟
墙垣之外有内外两重壕沟环绕,南围沟已破坏,西、北、东三面均有保存。内围沟距陵园外墙3~3.5米、宽2~3米、深2.5~3米,两壁较直,截面呈“U”形。外围沟距陵墙垣35~43米、宽2.5~3米、局部宽10~17米、深3~6米。两壁竖直,截面呈“u”形。沟内填土呈黑褐色,土质松软,包含草木灰和瓦片等。
外藏坑
除帝陵陵园内发现3座外藏坑外,帝陵园墙周围还发现17座外藏坑。其中南侧1座,西侧5座,东侧11座。
衬葬墓
延陵内衬葬墓分布在西北部、北部,该区域共有墓葬19座,现存封土的13座。这批墓葬东西向排列,共有4排,其中由南向北第一排4座,均有封土和夯筑的园墙;第二排3座,均有封土,东侧2座有夯筑的园墙,西端1座以围沟环绕;第三排5座,现存封土的3座,东侧4座有夯筑园墙,西端1座以围沟环绕;第四排7座墓葬分布在延陵北园墙附近,从陵园西北角沿北墙向东延伸到帝陵北神道附近,其中有夯筑园墙的3座,其余皆以围沟环绕。 延陵陵园外调查、勘探共发现陪葬墓36座,大都沿司马门道两侧分布,其中南司马门道两侧最集中,东司马门道、西司马门道两侧也有分布。这些墓葬大多存有封土,封土形状多为覆斗形、圆丘形。墓葬规模大小不一,墓道朝向以南向、东向者居多。有的墓外围夯土墓园,有的发现门阙,有的墓附近堆积板瓦等建筑材料,墓园内有祠堂等与祭祀相关的建筑。陪葬墓主的身份多是当时的贵族或高级官吏及其家族。
延陵陵区平面图
帝陵陵园
墙垣
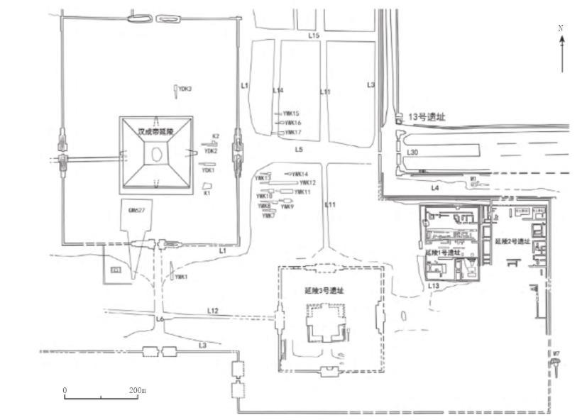
帝陵陵园位于延陵陵园东南部,平面形制为南北向长方形。封土四周环绕夯筑墙垣,南北长517.7米、东西宽403.5米、墙厚约3.2~5.3米。今地表已无墙垣遗迹,残高2.2~2.4米。墙垣四面正对封土处辟四门,以东门阙为例,其形制为以门道为轴线的南北对称的“三出阙”,门阙基址为一个整体,南北通长112.4米、宽约11~23米、门道宽约6米。南侧夯土台基残长46.7米、宽约8米、高约2米;北侧夯土台基残长27米、宽约7.5米、高约1~2米。墙垣四角处均加宽,最宽处为6.5米,应有角阙之类的建筑设施。
帝陵
帝陵封土位于帝陵陵园偏南部,呈覆斗形,底部边长156~159米、顶部边长52~54米、高26~27米。封土顶部略偏南位置有塌陷形成的锅底状坑。封土底部四周向外延伸出较平缓的台面,宽约4.2~8.7米。帝陵的墓葬形制为四条墓道的“亚”字形竖穴土圹墓,墓室位于封土下。封土四面正中各有一条斜坡墓道,平面呈梯形。由于封土过厚勘探困难,墓室情况不明。
外藏坑
帝陵陵园内共发现3座外藏坑,外藏坑平面呈长方形,由斜坡道和坑体两部分组成。通长17.4~37.5米、宽1.5~5.3米、坑体深约4.4~9.2米。坑内发现红烧土、木炭,坑底通常有白色板灰痕或漆皮痕迹。
帝陵平面图
后陵陵园
墙垣
后陵陵园位于延陵陵园西部,西距西园墙35米,东距帝陵陵园886米。陵园平面呈南北向长方形,四周有夯墙围绕,园墙南北232.2米、东西163.2米、厚1.3~2.6米,现地表已无存,残高0.8~1.2米。东、南墙筑有门阙,为“二出阙”,北、西墙有门道无阙。
后陵陵园南部有一道宽2.2~3.4米的东西向隔墙将陵园分隔为南、北两个院落,中部偏东辟有二出门阙,作为南、北院通道。南院东西163.2米、南北51.2米,在其西北和东南分别发现有建筑基址。北院东西163.2米、南北181米,后陵封土坐落在北院正中位置。
后陵
后陵封土呈覆斗形,底部边长约87米、顶部边长23~25米、残高约21.5米。封土东、南、西三面距顶部2.5米处内收成台,台面宽约2~3米。封土顶部散落瓦片。皇后陵墓形制为四条墓道的“亚”字形墓,墓穴位于封士下。封士四面正中各一条斜坡墓道。
附属建筑
延陵陵园内共发现14处建筑遗址,其中帝陵东侧、陵园东南凸出部分布着3座建筑遗址,帝陵陵园北侧分布有5座建筑遗址,其中帝陵北神道东侧由南向北分布有4座建筑遗址,1座建筑遗址分布在北神道西侧。陵园东北部分布着2座建筑遗址。2座建筑遗址分布在陵园西北部、衬葬墓区东侧。2座建筑遗址位于陵园东墙外。
遗址特点
与其他汉代帝陵均为规整的东西向长方形相比,汉成帝延陵西北角内收、东南角外凸,形成了一个前所未见的怪异的平面形制。形成原因:第一,汉成帝延陵的东侧原有战国晚期秦王陵园一座,近三百年前的秦王陵虽已破败不堪,但遍地的瓦砾、残断的墙垣、特别是依然高耸的陵冢迫使汉成帝延陵陵园的东垣墙只能向西退避。第二,汉成帝延陵西北侧有时代略早的先帝——汉昭帝平陵的陪葬墓若干。陪葬墓的级别虽然和皇帝不能比拟,然在“以孝治天下”的年代,先帝陵的总体格局是绝对不能破坏的,延陵的西北角也不得不忍痛割爱。
延陵复原图
2001年6月25日,包含延陵在内的西汉帝陵被中华人民共和国国务院公布为第五批全国重点文物保护单位。
2013年5月27日,包含延陵在内的西汉帝陵入选国家文物局《大遗址保护利用“十二五”专项规划》“十二五”时期大遗址”名单。
2016年10月31日,包含延陵在内的西汉帝陵(含薄太后陵)入选国家文物局《大遗址保护利用“十三五”专项规划》“十三五”时期大遗址”名单。
2019年4月24日,包含延陵在内的西汉帝陵被国家文物局列入《中国世界文化遗产预备名单》。
2021年10月12日,包含延陵在内的西汉帝陵入(含薄太后陵)选国家文物局《大遗址保护利用“十四五”专项规划》“十四五”时期大遗址”名单。
位置
延陵位于陕西省咸阳市渭城区周陵街道严家沟村西北。
汉成帝延陵
门票
延陵免费开放。
交通
乘咸阳市53路公交在文林路西口站下,步行2.8公里到达。
1、本站所有文本、信息、视频文件等,仅代表本站观点或作者本人观点,请网友谨慎参考使用。
2、本站信息均为作者提供和网友推荐收集整理而来,仅供学习和研究使用。
3、对任何由于使用本站内容而引起的诉讼、纠纷,本站不承担任何责任。
4、如有侵犯你版权的,请来信(邮箱:baike52199@gmail.com)指出,核实后,本站将立即删除。

















