-
渤海国上京龙泉府遗址 编辑
渤海国上京龙泉府遗址(The Site of Longquan Mansion in Shangjing, Bohai Kingdom),史称“忽汗城”,位于黑龙江省牡丹江市宁安渤海镇。东北至宁安镇49千米,西南距镜泊湖25千米。是唐朝渤海都督府上京龙泉府故城遗址。
唐开元元年(713年),唐朝册封大祚荣为左骁卫员外大将军、渤海郡王。开元七年(719年)三月,大祚荣去世。天宝十四年(755年),渤海国王都从中京显德府(吉林省和龙市)迁至上京龙泉府(渤海国上京龙泉府遗址)。遗址平面略呈长方形,由外城、内城、宫城三部分组成。渤海共传十五代王,第1代、第2代唐朝封为“渤海郡王”,从第3代起,唐朝晋封为“渤海国王”,渤海政权正式国名是“渤海国”。 上京龙泉府是渤海国最重要的都城,也是渤海为都时间最长的都城,见证了渤海这个“海东盛国”的盛衰荣辱,见证了肃慎族系、靺鞨民族融入中华民族的历史进程,是中华民族多元一体的历史见证。通过对渤海国上京龙泉府遗址的布局、功能、制度、建筑、文物等方面的研究,不仅在渤海考古研究领域具有重大意义,也将对中国城市发展史、建筑史等诸多研究领域产生重要影响。
1961年3月4日,渤海国上京龙泉府遗址被中华人民共和国国务院公布为第一批全国重点文物保护单位。 2006年5月25日,第六批全国重点文物保护单位渤海国三灵坟作为扩展项目被合并进渤海国上京龙泉府遗址。 2021年10月18日,渤海国上京龙泉府遗址被国家文物局列入全国“百年百大考古发现”。
中文名:渤海国上京龙泉府遗址
外文名:The Site of Longquan Mansion in Shangjing, Bohai Kingdom
地理位置:牡丹江市宁安市渤海镇
所处时代:渤海(698年—926年)
占地面积:16.4 km²
保护级别:第一批全国重点文物保护单位
批准单位:中华人民共和国国务院
编号:1-158-005-023
远眺宫城第2殿址
清同治十年(1871年),英国人对渤海国上京龙泉府遗址进行调查,并将此遗址介绍给西方世界。
清宣统二年(1910年),日本学者白鸟库吉对渤海国上京龙泉府遗址进行了调查。此后三上次男、驹井和爱、水野清一等也对此城先后进行过考察。
民国十五年(1926年),日本东京帝国大学鸟山喜一、俄国人B.B.阿格诺索夫等人,在渤海国上京龙泉府遗址采集了各种瓦和泥朔佛像等残件,并推断为唐代渤海国上京龙泉府故城。
民国二十年(1931年),东省特区文物研究所对渤海国上京龙泉府遗址进行第一次综合考察。
渤海国上京龙泉府遗址
1959年,黑龙江省博物馆在渤海国上京龙泉府遗址发现早期铁器时代文化遗存牛场遗址。
1964年,中国科学院考古研究所对渤海国上京龙泉府遗址进行了较大规模的发掘和清理。
20世纪80年代,黑龙江省考古队对渤海国上京龙泉府遗址进行了较大规模的发掘和清理。
1988年,宁安市文物管理所在对三灵坟周围埋设文物保护铁护栅栏的施工中,在墓室南侧发现一尊渤海时期的豆绿色石狮,是年秋,黑龙江省文物考古研究所对1号墓进行了系统的清理发掘,出土了大量的大型建筑石饰件,壁画残块,文字瓦、墓主残骸,并在墓道底部清理出石砌雕凿棺床,整块玄武岩雕凿的踏道及石户枢等墓门构件。
1989年秋,继续对三灵坟周围的园墙遗存进行了探查试掘,查明在三灵坟周围园墙的准确位置,园区分南北二区,园门南开,西临其它石墙园区。这次发掘工作,不仅确认了石墙的范围,更重要的是三陵坟正南,园区以外的农田之中,发现了“神道”的遗迹,略显凸起的神道,为人工夯筑,直接与三陵以东江段的渤海时期桥址相通。
20世纪90年代,黑龙江省考古队对渤海国上京龙泉府遗址在《渤海国上京龙泉府遗址保护规划》的原则控制下,结合抢救保护等工作,有计划地对上京遗址的建筑遗迹进行了发掘。
1997年,黑龙江省文物考古研究所和牡丹江文物管理站联合对渤海国上京龙泉府遗址内的11号街路、内城东垣南段、进行了钻探及清理,对御花园东夹墙南段和外城北垣11号门址进行了发掘。同时对上京宫城西侧白庙子村内修路发现的舍利函埋藏地点进行了抢救性清理。
1998年,黑龙江省文物考古研究所和牡丹江文物管理站联合对渤海国上京龙泉府遗址外城正北门进行发掘。
1999年,黑龙江省文物考古研究所、吉林大学考古学系和牡丹江文物管理站联合对渤海国上京龙泉府遗址第2宫殿基址进行发掘。
2000年,黑龙江省文物考古研究所、吉林大学考古学系和牡丹江文物管理站联合对渤海国上京龙泉府遗址第3宫殿基址进行发掘。
渤海国上京龙泉府平面图
上京龙泉府遗址
综述
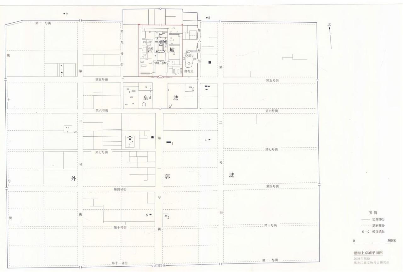
渤海国上京龙泉府遗址仿唐长安城而建,整个城址略呈长方形,由外城、内城和宫城(紫禁城)组成,城环套,坐北朝南,上京城垣、宫殿、禁苑址等保存比较完整,总面积16.4平方千米。
渤海国上京龙泉府复原沙盘
外城部分
外城平面呈长方形,北垣全长(含与宫城北垣共用段)4946米,南垣长4854米、东垣长3360米、西垣长3400米。城垣为土石混筑,北部用石比例大,南部用石比例小。南垣残高不足1米,其余三面残高2~3米,基宽16~18米。外城壕遗迹明显,南城壕长3000米、宽4~6米、深约2米,东北城垣外亦可见城壕遗迹。外城门十二处,南三门,北五门,东、西各二门,各门位置对称。外城垣现有豁口三十九处。城内有十条南北相交街道和一条环城街道遗迹,其中有一条中心大街为全城中轴线,北起内城南门,全长2100米、宽110米,把全城分为东、西两区。坊市遗迹亦分布其中,并发现有佛寺遗迹九处。
1.古寺及石佛
在外城内发现有渤海古寺址十座。如“朱雀大街”南部东侧二个寺庙址,殿基东西长52米,南北宽30.7米,上面础石整齐,四周凿石镶边。清初就原址重建寺庙,名之“兴隆寺”,俗称“南大庙”。咸丰年间,曾经重修。在这些寺址附近时常可以采集到铜佛、陶佛以及建筑装饰品的残件。今兴隆寺院内,有渤海时期遗留下来的完整的佛教石雕作品石灯幢。保存在兴隆寺原三圣殿内的大石佛,高丈余,身披袈裟,坐在莲花石座上,雕工精细。大石佛在清初保存尚好,后来屡遭破坏,解放后重新移回原址,参照同类造像,整修复原。
内城部分
内城东西长1045米、南北平均宽452米,由二区二街组成。北部以宽近90米的东西“横街”与宫城相连,中部有南北向的“直街”,长约370米、宽约200米,两侧为东、西二区。内城共设三门,即东门、西门与南门,南门居南垣正中,直街与外城之直街在此相接,东门与南门遗址保存基本完好。内城为官衙所在。北墙残存高约1米,西区有一处高约3米的方形高台,东区有一直径约40米、深1米的圆坑。
1.禁苑
俗称“御花园”,在内城东洹以西,宫城东垣以东,周长约3华里。今存池塘遗迹,面积近二万平方米,为一人工湖。池塘东西两侧有假山址,北部有亭榭址,础石仍旧原址存放,附近多黄绿色釉瓦。亭谢原是八角形建筑。
宫城部分
宫城遗址
三灵坟
综述
三灵坟是唐代渤海国时期建造的王陵墓区。位于黑龙江省宁安市三灵乡,陵区北倚岗地,墓南约500米有牡丹江自西向东流过,江南是平坦开阔的东京城盆地,东南2公里的牡丹江中有渤海古桥址,隔江4公里为渤海上京龙泉府故城。
整个陵园区占地面积为26800平方米。南北200米,东西134米,经初步测定,陵园区内有五座墓葬。
1号墓
三灵坟1号墓位于陵区的北部中部,是一座保存完整的大型石室墓,由墓室、甬道、墓道三部分组成,整个墓平面呈“甲”字形。墓室为平面呈长方形,南北长4米,东西宽2.19米,高1.8~2米。室内棺床尚存,墓室四壁用雕凿规整的玄武岩条石砌筑,其上用石板筑成叠涩穹隆顶,并由大块玄武岩封盖。甬道长4米,北接墓室,两端与宽1.46米的双扇墓门相通,甬道东,西两侧堆石约呈拱券状,南与墓道相接处有四级石质台阶。墓上东南,东北,西北角存三块玄武岩柱础石,与渤海上京城内发现的覆盆状础石完全相同。墓地周围有较多的残砖碎瓦,证明墓上原应有祠堂或享堂之类的陵园建筑。
2号墓
2号墓位于1号墓的东偏北约30米。整座墓室建在地下,墓室上部用一层白灰封护,整个墓葬由墓道、甬道、墓室三部分组成,墓向朝南,墓葬由雕凿整齐的玄武岩石块砌就,墓顶由大块的玄武岩封盖,甬道开在墓室南壁中部,墓室上部为抹角叠涩藻井,墓室内摆放着十余具骨骼,为多人合葬,所出骨骼既有成年人的,也有儿童的。墓室和甬道的壁面,顶部,底部都抹有较厚的白灰层,在墓室四壁,顶部及甬道两侧的白灰层上面都绘有精美的壁画。
寺庙遗址
渤海国上京龙泉府遗址外城内发现渤海古寺址10余座,如“朱雀大街”南部东侧2个寺庙址,殿基东西长52米,南北宽30.7米,上面础石整齐,四周凿石镶边。附近出土铜佛、陶佛以及建筑装饰品的残件。
铜器杂项
第二宫殿址出土的三彩兽头
舍利函
舍利函
石灯幢
石灯幢又名石灯塔或石浮屠。位于渤海国上京龙泉府遗址西南的兴隆寺(南大庙)院内。是唐代渤海时期保存下来的唯一完整的大石雕。原高为六点四米,后因原刹损坏,现高六米,是用玄武岩(火山喷发形成的有气孔的石头)雕琢迭筑而成。全幢雕刻细致。由塔刹、相轮、塔盖、塔室、莲花托、中柱石、莲花座和底座等部分组成。塔盖形似亭榭,八角攒尖,雕刻盖脊和瓦垅。塔室镂空,亦为八面体,与塔盖相接处雕刻斗栱,具有中国典型木构特点。
石灯幢塔室八面各刻长方窗孔,其上又有小窗孔。中柱石之上的莲花托是仰莲,之下的莲花座是覆莲,均刻三瓣花片,层层重迭、犹如巨莲盛开。渤海盛行佛教,而石灯塔是典型的佛教石雕艺术作品。雕刻精细,刀法娴熟,敦实古朴,巍然壮观,是渤海具有代表性的石雕珍品。
石灯幢
天门军之印
天门军之印
三灵坟壁画
三灵坟壁画内容可分为花卉和人物两类,墓室上部抹角叠涩部分的壁画全部为花卉,基本为二方连续的困花,图案美观,色泽艳丽。墓室四壁与甬道两侧为人物形象,多已剥落,但人物的姿态与服饰仍依稀可辨,墓室四壁人物多为女性,面部丰腴,颇具唐风,甬道南端东西两壁的人物为武士形象,造型生动、传神。
渤海国是历史文献记载中黑龙江省境域内出现的第一个政权,系中世纪中国东北地区以靺鞨族为主体建立的受唐王朝册封的地方少数民族政权。上京城是渤海国最重要的都城,也是渤海为都时间最长的都城,见证了渤海这个“海东盛国”的盛衰荣辱,见证了肃慎族系、靺鞨民族融入中华民族的历史进程,是中华民族多元一体的历史见证。渤海上京城是当前保存最完整、城内外遗迹保存最完好的中世纪都城遗址。作为一处内涵丰富的古代都城,城内外保留下来的遗迹具有极高的科研价值。尤其在唐宋都城尽被现代城市覆盖的情况下,更显现出其独特的学术含量和地位。通过考古资料的对比研究,一方面可以看出渤海国的都城建设是以隋唐都城制度为蓝本,表现出了浓郁的汉唐文化风貌;另一方面在效仿的过程中并不完全照搬硬套,而是根据自身的具体情况加以改良,创造出具有本地区特色的建筑形制,为中国建筑史增添了新的色彩。对渤海上京城布局、功能、制度、建筑、文物等方面的研究,不仅在渤海考古研究领域具有重大意义,也将对中国城市发展史、建筑史等诸多研究领域产生重要影响。
朱雀大街
文保碑
1985年2月,中华人民共和国国务院批准建立黑龙江省渤海上京遗址博物馆,负责保护、研究和展示渤海上京遗址及其出土文物。
2006年,黑龙江省人民政府颁布《黑龙江省唐渤海国上京龙泉府遗址保护条例》。
2016年10月,国家文物局编制引发了《大遗址保护“十三五”专项规划》,渤海国上京龙泉府遗址被列入“十三五”时期大遗址。
2006年5月25日,第六批全国重点文物保护单位渤海国三灵坟作为扩展项目被合并进渤海国上京龙泉府遗址。
2021年10月12日,渤海国上京龙泉府遗址入选国家文物局《大遗址保护利用“十四五”专项规划》“十四五”时期大遗址”名单。
2021年10月18日,渤海国上京龙泉府遗址被国家文物局列入全国“百年百大考古发现”。
2024年1月9日,国务院在《关于〈黑龙江省国土空间规划(2021—2035年)〉的批复》中强调,加强渤海国上京龙泉府遗址、金上京遗址等历史文化遗产以及红色文化遗产保护,守护好原生态风貌,构建文化资源、自然资源、景观资源整体保护的空间体系。
渤海国
王宫门殿址殿础石
渤海国是唐宝应元年(762年)由唐朝册封建国、后唐天成元年(926年)才被契丹吞并的东北割据政权。这个由粟末靺鞨大氏建立的国家,全盛时领土跨据中国黑龙江、吉林、辽宁三省及俄罗斯滨海边疆区和朝鲜北部广大地域,首都上京龙泉府(渤海国上京龙泉府遗址)是当时东亚仅次于长安的第二大城市,号称“海东盛国”。
后唐天成元年(926年),渤海国被契丹攻灭,前后立国一个半世纪之久,共传十五世王,历经229年,和中国唐朝、五代、契丹、朝鲜、日本都建立了外交和商贸关系。契丹太祖耶律阿保机改渤海国为东丹国,上京为天福城,封太子耶律倍为东丹王(人皇王),统治渤海旧地。历时不久。后唐天成三年(928年),东丹国都城从天福城南迁东平(辽阳)。
位置
渤海国上京龙泉府遗址位于黑龙江省牡丹江市宁安县渤海镇境内。
渤海国上京龙泉府遗址
交通
宁安市—宁古塔大道—G11鹤岗—大连高速公路—201国道—渤海国上京龙泉府遗址。
1、本站所有文本、信息、视频文件等,仅代表本站观点或作者本人观点,请网友谨慎参考使用。
2、本站信息均为作者提供和网友推荐收集整理而来,仅供学习和研究使用。
3、对任何由于使用本站内容而引起的诉讼、纠纷,本站不承担任何责任。
4、如有侵犯你版权的,请来信(邮箱:baike52199@gmail.com)指出,核实后,本站将立即删除。

















