静乐文庙 编辑

第八批全国重点文物保护单位

静乐文庙静乐文庙

静乐文庙,位于山西省忻州市静乐县鹅城镇儒林街村,占地面积约4722平方米,建筑面积约1718.53平方米,是明朝至民国时期的建筑。

静乐文庙,始建于北宋大观年间。明洪武二年(1369年),由城内儒林街迁建于现址,明万历十五年(1587年),重建,后代屡有修缮。民国二十七年(1938年),贺龙等将领曾在静乐文庙召开各界抗日统一战线大会。文庙坐北朝南,西侧轴线主要有根星门、过殿、大成殿,两侧有东西配殿、西厢房。东侧轴线主要有儒门、启圣祠、明伦堂,两侧有养心斋、存心斋、名宦祠、乡宦祠、敬业堂等,为岑山书院所在。静乐文庙建筑规模较大,布局合理,且保存基本完整,其用材、工艺及艺术风格体现了晋北地区的特点,为研究中国传统儒学文化和文庙建筑提供了实物例证,具有较高的历史价值。

2019年10月16日,静乐文庙被中华人民共和国国务院公布为第八批全国重点文物保护单位。

基本信息

编辑

中文名:静乐文庙

地理位置:山西省忻州市静乐县鹅城镇儒林街村

所处时代:明至民国

占地面积:约 4722 m²

保护级别:第八批全国重点文物保护单位

编号:8-0251-3-054

批准单位:中华人民共和国国务院

历史沿革

编辑
静乐文庙,始建于北宋大观年间(1107~1110年)。

明洪武二年(1369年),由城内儒林街迁建于现址。明万历十五年(1587年),重建,后代屡有修缮。

民国八年(1919年)至民国二十六年(1937年),曾为静乐县第一高小所占用,高君宇、吕调元等均在此就读。

民国二十七年(1938年),贺龙等将领曾在静乐文庙召开各界抗日统一战线大会。

静乐文庙静乐文庙

1997年4~8月,由国家文物局扶持出资约16万元,静乐县文化部门对明伦堂进行了维修。

建筑格局

编辑

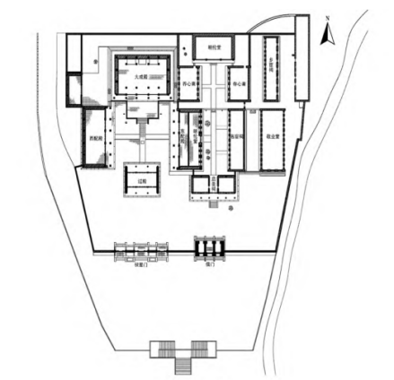
静乐文庙布局图静乐文庙布局图

静乐文庙,坐落于静乐县城东北的岑山半山腰,背倚文峰塔,俯瞰东碾河,与文峰塔融为一体,共同构成静乐八景之一—文峰凌霄。庙宇坐北朝南,楔形布局,南窄北宽,Y字形南北向台阶直通棂星门、儒门前广场。广场最窄处东西宽约46米,向北逐渐加宽,至庙宇围墙处达68米左右。庙宇的整体轮廓亦呈梯形,南边东西宽约61米,北边东西宽约81.5米,南北长约64米,总占地面积4722平方米。

文峰塔文峰塔

建筑群分东西两条轴线布置。西轴线主要建筑有棂星门、过殿、大成殿,两侧有东西配殿、西厢房;东轴线主要建筑有儒门、启圣祠、明伦堂,两侧有养心斋、存心斋、名宦祠、乡宦祠、敬业堂等,为岑山书院所在。其中,大成殿、东西配殿为明代建筑,明伦堂及其东西厢房为清代建筑。西轴线院外北延,有长达百米的台阶甬道,直通岑山之巅的文峰塔,并与之融为一体,构成静乐文庙一大景观。

主要建筑

编辑

大成殿

大成殿大成殿

大成殿,明代建筑。坐北朝南,建于高1.2米砖砌台阶上,前设月台,月台长11米、宽5米。大殿平面近正方形,面阔间17.20米,进深六椽11.92米,高11.48米(室外地平至脊吻顶),七檩前后廊式构架,四周斗拱均为七踩三昂,前檐明间出斜昂。单檐歇山顶,灰陶质筒板布瓦屋面,前坡中部设琉璃方心。正脊两端置龙形正吻,垂脊、戗脊上各置垂兽、戗兽,戗脊端置走兽;梁架共六缝,明间为五檩抬梁,前后出单步梁;两山踩步金上置垫墩承三架梁;两山斗拱上置顺爬梁与殿内金柱结构,角梁后尾搭于爬梁之上。周檐斗拱为七踩三昂,四周交圈。单步梁头刻作麻叶形,与异形拱十字相交,共同承托挑檐檩。殿内柱头科单步梁后为金柱结构,平身科耍头后尾做成挑斡与金檩下随檩枋结构。前檐明间出45度、60度斜拱。前后檐柱头与平身科斗拱上第一道正心枋相交处刻作鸳鸯拱。昂为琴面昂,下部刻作蝉肚状。四周设檐柱,上置平板枋、小额枋交圈,柱头、小额枋两端均做砍杀;两山及后檐柱封砌于墙内。殿内前后檐各置金柱一排。金柱与前后檐柱间设穿插枋连构。柱脚置带圆鼓镜的方形础石。两山及后檐下部砌槛墙(三顺一丁),两侧砌砖垛(七顺一丁),中部为土坯砌筑。前檐两稍间砌槛墙,两角斜抹,开柱门。前檐明、次间置六抹落地隔扇;两稍间槛墙上部置四抹隔扇窗;隔扇心屉为斜方格形。

东西配殿

静乐文庙静乐文庙

东西配殿,明代建筑。平面呈长方形,面阔五间16.66米,进深两间7.12米,总高9.03米,单檐悬山顶,灰陶质筒板布瓦屋面。正脊两端置龙吻、垂脊前侧置望兽。五檩抬梁,前出廊。共享梁架六缝。五架梁上置垫墩承三架梁,其上置脊瓜柱,柱脚设角背,两侧置叉手。斗拱形制同大成殿柱头斗拱;前檐柱头、补间置七踩三昂斗拱共11攒,两角柱头斗拱外侧出45度、60度斜拱,明间平身科斗拱两侧出斜拱;单步梁头刻作麻叶形,与异形拱十字相交,共同承托檐檩;昂为琴面昂,下部刻作蝉肚状。廊柱、前檐柱露明,后檐柱封砌于墙内;柱头小额枋两端均做砍杀;廊柱与檐柱间设穿插枋连构;柱脚置带圆鼓镜的方形础石(砂石质)。前檐明、次间置六抹落地隔扇;两稍间槛墙上部置四抹隔扇窗;隔扇心屉为斜方格形。

过殿

过殿,明代建筑。面阔三间10.46米,进深四椽7.76米,高7.64米(室外地平至脊吻顶),双坡筒板瓦悬山屋面,前后檐设五踩斗拱,梁架为五架梁上撑三架梁,均做彩画。前后檐均为通隔扇。

明伦堂

明伦堂明伦堂

明伦堂清代建筑。面阔三间13.13米,进深四椽7.23米,高7.73米,双坡悬山筒板瓦屋面,屋面设正脊、垂脊、正吻、垂兽,山面排山沟滴排水。前檐装修三间均为六抹隔扇,明间屋檐下立“明伦堂”牌匾,恢宏大气,气势磅礴。

儒门

儒门儒门

儒门,民国建筑。面阔三间8.61米,进深一间3.55米,建在0.8米的高台上,高6.77米(台明至脊吻顶),高券洞式门洞。屋面为筒板瓦屋面,歇山顶,装修为三间大板门。

文物遗存

编辑
静乐文庙院内存明、清重修碑3通,记载着文庙历代修建情况。

文物价值

编辑
静乐文庙位于静乐县城岑山山腰,地势高旷,背靠山崖,俯瞰全城,视野开阔。该庙在选址和建筑布局方面,综合考虑了地势、光照等各方面的因素,主从有致,轴线分明,左右对称。各殿宇建筑空间设计,体现了古代文庙选址及建筑艺术风格。庙内各建筑组群关系合理、建筑工艺、细部做法具地方特色。建筑用材硕大,立面效果庄严厚重,以中国古代传统建筑风格为依据,反映出当地明至民国时期文庙的建筑布局和艺术风格。

静乐文庙建筑规模较大,布局合理,且保存基本完整,其用材、工艺及艺术风格体现了晋北地区的特点,为研究中国传统儒学文化和文庙建筑提供了实物例证,具有较高的历史价值。

保护措施

编辑

省级重点文物保护单位省级重点文物保护单位

2004年6月10日,静乐文庙被山西省人民政府公布为第四批省级重点文物保护单位。

2019年10月16日,静乐文庙被中华人民共和国国务院公布为第八批全国重点文物保护单位。

旅游信息

编辑

地理位置

静乐文庙位于山西省忻州市静乐县鹅城镇儒林街村。

儒林街村

交通信息

步行:自山西省忻州市静乐县人民政府步行前往静乐文庙,路程约600米,用时10分钟。

下一篇 朱氏牌楼

上一篇 五台山南山寺