-
许家桥将军府 编辑
许家桥将军府,位于湖南省永州市零陵区梳子铺乡许家桥村,占地面积约40000平方米,总建筑面积2533平方米,始建于元末明初,清道光时曾进行维修,形成现有格局。
许家桥将军府由西至东依次为甬道、半月台组成的前导空间、门楼、宽敞水面,以及呈两纵向轴线排列的公厅天井院落群。公厅屋为将军府主体建筑,前有七级台阶,面向以水池为核心的宽敞庭院,地位突出。将军府每列公厅屋虽进深丰富变化,却始终广“不过三间”,按照许氏族人世袭官阶之制符合《明史》“六品至九品厅堂三间七架”。许家桥将军府本体及环境原真性好,是研究古代官宅建筑特征、演变与断代的重要实物例证。
2019年10月7日,许家桥将军府被中华人民共和国国务院公布为第八批全国重点文物保护单位。
中文名:许家桥将军府
地理位置:湖南省永州市零陵区梳子铺乡许家桥村
所处时代:明朝
占地面积:约 40000 m²
保护级别:第八批全国重点文物保护单位
编号:8-0386-3-189
批准单位:中华人民共和国国务院
清道光时期,许家桥将军府曾进行维修。
1949年后,许家桥将军府作为村民住宅使用。中华人民共和国成立后,许氏宗祠曾为许家桥村会堂,宗祠四周加修简易墙体。
2010年,全国第三次文物普查时许家桥将军府被发现并登录。
许家桥将军府全貌
许家桥将军府
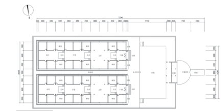
许家桥将军府公厅屋平面图
门楼
公厅屋
梁架
“公厅屋”第一进为门楼,面阔三间,进深两间,面阔12.5米,进深5.5米,脊檩下皮高度4.1米,“七架梁”。外槽为三步梁,“脊步梁”用雕刻成花型的斗栱代替。“双步梁”为月梁制,梁上置坐斗,坐斗上安放莲花形柁板承檩。外槽实际为轩廊,地面用规整的青石板铺成。廊边铺长条形阶条石。内槽亦为三步梁,梁枋无雕刻,但各梁架节点刻有卧鹿、飞凤等形状各异的驼墩瓜柱。门楼整体木构架呈南方典型之“穿斗”做法,却在一些承重节点上施加斗栱样式,以符官宅等级形制,是明代封建等级制度结合地方做法的体现。
“公厅屋”第二进为公厅,面阔三间,进深三间,前部为厅堂,后部为天井与两侧厢房。宽与门楼相同,进深8.7米,脊檩下皮高度4.8米。厅堂为“五架抬梁”前后并接“三步梁”混合穿斗。“双步梁”为直梁,后端插入中柱,前端伸出外檐柱成挑檐枋承重檐檩,月梁之上莲花形坐斗之下为矮木,似元代以前建筑之“驼峰”做法。厅堂平面上采用了“移柱造”做法,将厅堂内外两金柱分别向所邻外檐柱挪动一定距离,以获得室内较为宽敞的活动空间。许家大院的先辈世代出身武官,练武成为许家世代传习的技艺,凡二十世纪六七十年代的许家桥村民都习武,当地俗传“上有鲁家,下有许家”。厅堂之宽同时也满足了族人的精神空间诉求。
“后一厅”前与公厅相连。进深9米,高5.5米,共四榀梁架,系“瓜柱穿斗抬梁混合式”构架,外侧两排为排山柱。形成五柱七瓜即“前三后四”瓜柱的梁柱结构。
许家桥将军府
“后二厅”原为神堂,供奉历代祖宗牌位,进深12.6米,布局结构与后一厅相同,但装饰比“后一厅”更加讲究。右列北四栋保存完好,一楼的梁枋已经见不到精美的雕刻,系因原来的装饰损毁,在后来维修中没有恢复原貌。第二栋的公厅中间两排抬梁式梁架被户主拆除改为五柱穿斗式结构,梁架原构被户主完好保存。第四栋原来也作为神堂,现已被改建成一般性住房。
横屋
横屋建在公厅屋的两侧,左右上下对称排列各有四座,部分倒塌或改建成现代民居。目前仅剩北边一座完好。系悬山屋顶,四排梁架,每排呈五柱七瓜的布局,明间为厅堂,两次间是卧房。前檐柱和前金柱的穿枋上雕有驼峰承重檩条。公厅屋的门楼、公厅、后一厅、后二厅及横屋都无砖墙,系由明代初期青砖不能大量的烧造,只在排山柱和门屋的中柱上装木壁板为墙,符合明代初期建筑少用青砖的时代特征。
许氏宗祠
许氏宗祠系“天井合院式”建筑,面阔三间,进深三栋。整体进深32米,宽10.5米,建筑面积约336平方米。进大门入第一栋前为门厅,中为天井,两侧是厢房,梁架系“穿斗式”。过天井两侧走廊进入第二栋即中厅,四榀梁架,中间两榀为“瓜柱抬梁混合穿斗”结构,侧面两榀为五柱排山柱穿斗混合砖墙承重。第三栋后厅通过走廊与中厅相连,屋内梁架采用“五柱七瓜”穿斗样式。厅堂用了“减柱法”以增加室内空间,前檐柱距前金柱1.3米,后金柱距后檐柱2.3米,而前后两金柱间距4.4米。减柱之法明代后期基本消失,许家桥明代将军府中减柱、移柱的做法体现了由明早期到明中后期的建筑形制过渡,以及地方做法的时空滞后性。
水池
七级青石台阶
石碑
据许氏祠堂出土石碑记载,许氏一族于“洪武丙午年十一月来居此地,世代昌隆”。明洪武实无丙午年,此处应为元至正丙午年(至正二十六年,1366年),这与许氏族谱记载大院始建年代相符,反映了当时汉人对胡人统治年号的反感,也从侧面佐证了许家大院的始建年代。许氏一族为将军世家,自元末至明早、中期均担任地方军中要职。据许氏族谱记载,许氏始祖(字焕长)“原籍浙江嘉兴府嘉兴县善良乡人,元至正时为湖南衡永郴桂副都统,诰封振武将军(从一品)……明洪武初,许氏始祖世袭指挥使(正三品),置田两百亩,定居许家桥;六世祖于嘉靖年间世袭指挥使;八世祖以军功保授戎府……”。
明代构件
地理位置
许家桥将军府位于湖南省永州市零陵区梳子铺乡许家桥村。
许家桥村村民委员会
交通信息
自驾:自湖南省永州市零陵区人民政府开车前往许家桥将军府,路程约29.5千米,用时约52分钟。
1、本站所有文本、信息、视频文件等,仅代表本站观点或作者本人观点,请网友谨慎参考使用。
2、本站信息均为作者提供和网友推荐收集整理而来,仅供学习和研究使用。
3、对任何由于使用本站内容而引起的诉讼、纠纷,本站不承担任何责任。
4、如有侵犯你版权的,请来信(邮箱:baike52199@gmail.com)指出,核实后,本站将立即删除。

















